ANBAU EINES KÜNSTERLATELIERS. BAULEITUNG FÜR AE2P ARCHITEKTEN. 2010
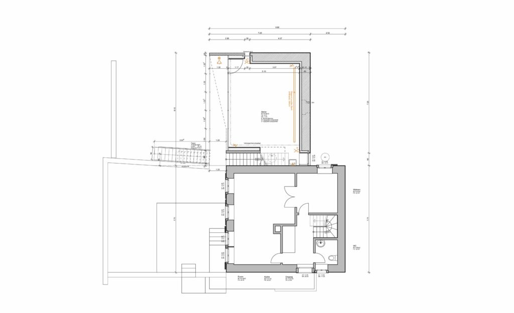
Für den Künstler Caspar Abt wurde ein neues Atelier an sein Wohnhaus in Grandfontaine angebaut. Auf den Grundmauern eines ehemaligen Schopfes wurde ein roher Beton Metall Körper gesetzt, der sowohl innen wie auch aussen unbehandelt gelassen wurde und ein Ort der Arbeit und Kontemplation schafft.
Mit einer grosszügigen Öffnung und einer Dachterrasse wird der Garten, die alte Linde und die weitläufige Landschaft des Jura in das Projekt eingebunden.










